用途:住居+α
構造:木造 ハーフビルド
竣工:2025
セミプロ級のDIY技術をもち、日々の生業で過ごす運送トラックの運転空間という小空間を好む住人と、出版関係で日々をエネルギッシュに動かれている住人の住まい.
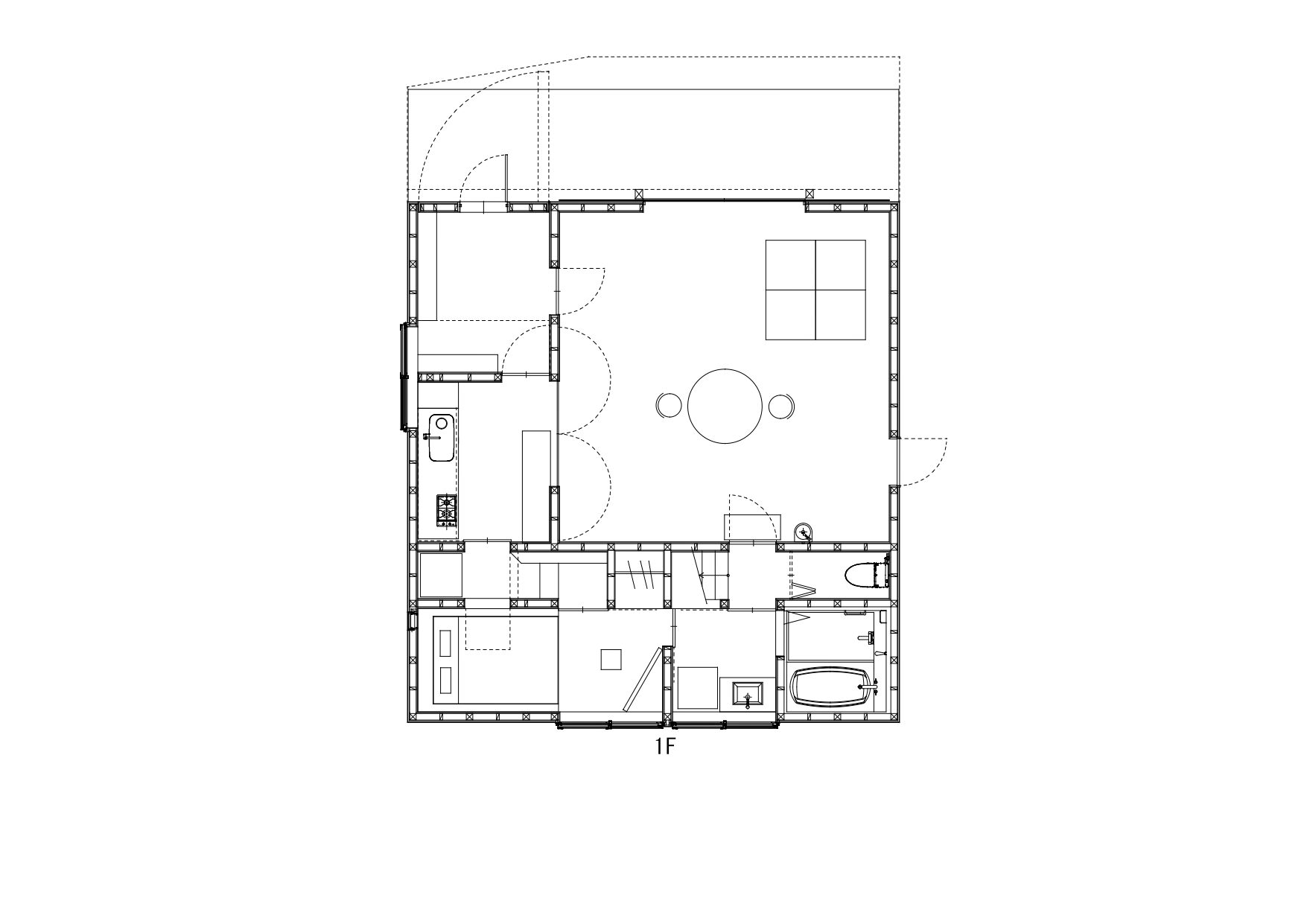
延床面積は約30坪の四角い家.
建築価格が上昇していく昨今、コスト対策はもちろんのことだが、建主自身が自分たちの住まいを自分たちでつくる喜びを楽しめるような仕組みを考えた.
設計と並行して設計者が積算し、全ての工事単価を住人に明示し、プロに任せるべき工事はプロに任せ、自分たちでつくれるところは自分たちで作っていくというセルフビルドならぬ、ハーフビルドの住まいづくりを実行した.
建築PLANは、住人が日々の仕事とともに開催しているワークショップを自宅でも催せるように、約8m角の平面に5.5m角の正方形ボリュームの広間を描き、その周囲に小さな諸室が巻き付いていく構成とした.
この住まいは二重動線プランとなっており、広間がパブリックな場として使われている時間は、広間を通ることなく基本生活ができる間取りとなっている.
トラックシート裏の就寝スペースのようなコンパクトな寝室は、壁にうがった窓から直接冷蔵庫に手を伸ばすことができたり、(この部屋はIHクッキングヒーターを搭載したテーブルもある)、ベッドの両サイドの収納に板をのせ、ベッドの上に居ながら食事やビールをたのしむことができる.これらの造作はすべて建主が拵えたものである.
北側には伊勢に残る里山の森が視界に拡がり、対して南側は交通量の多い道路であったため、階高を抑えた二階にいったん南の太陽光を溜めてから、2層分の広間に光を届ける構成とすることで、前面の道路、高台の住宅群からの視線と音を切り、広間のプライバシーを確保するとともに、世間と一線を画して森と対峙できる構成とした.
様々な個所に、大小の建具の開閉により空間のつながりが可変していく工夫を施した.
森と融通無下にダイレクトにつながる.
広間とキッチンとのつながり、又は個室化.
建具の状態の組み合わせで、シーンに応じて空間の形が変幻する.
玄関土間の入口は、壁ごと開くことができる大きな開閉機構を与えることで、趣味のDIYの際、ここは4m材を加工する屋根付きの加工場になる.
生活を自分たちでカスタマイズしていくことに、前向きで明るいエネルギーをお持ちの住人お二人らしい住まいとなった.
photo Shogo Yamazaki
